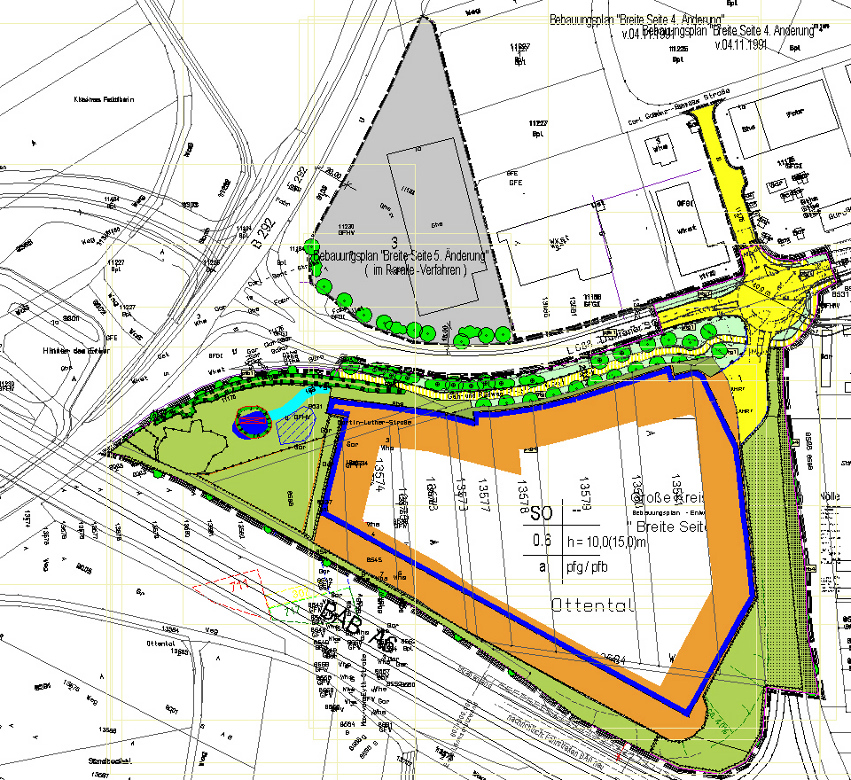
Ausschnitt Bebauungsplan "Breite Seite" - Sinsheim

zurück