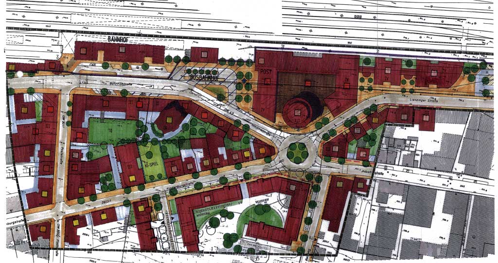
Mühlacker Bahnhofsbereich - Entwicklungskonzept

zurück