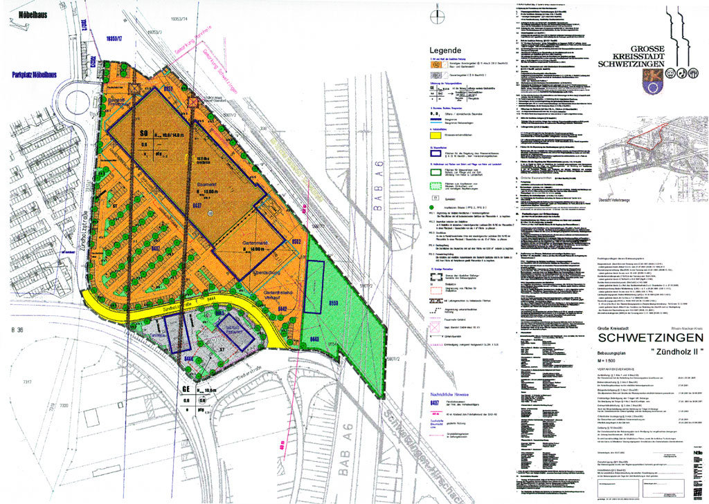
Schwetzingen "Zündholz I + II"

zurück