Bebauungsplanung |


|
Schwieberdingen, Neubaugebiet "Osthülbe IV"
Städtebaulicher Entwurf und Bebauungsplan für ein Wohngebiet von 16 ha Fläche entlang eines Landschaftsschutzgebietes zwischen Stuttgart und Schwieberdingen.
Planungsbeginn 1992. Mitwirkung an der Umlegung 1995-99. Satzungsbeschluss 1999, Aufsiedlung seit 2000.
Planungsziel war die stadtgestalterische Vermittlung zwischen bestehender Hochhausbebauung im Norden und Landschaftsschutzgebiet im Süden bei breitgefächertem Angebot unterschiedlicher Haus- und Wohnungstypen, sowie intensiver Durchgrünung und Durchlüftung des Gebiets.
|
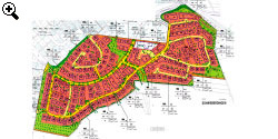
Mühldorf am Inn "Stadterweiterung Nordwest - Mühldorfer Feld"
Bebauungspläne für ein Wohngebiet mit Gemeinbedarfseinrichtungen und Sportanlagen von 31 ha Fläche auf der Grundlage eines städtebaulichen Wettbewerbsentwurfs der Architekten Mahler-Günster-Fuchs, Stuttgart zur Stadterweiterung Mühldorfs.
Planungsbeginn 1999, Satzungsbeschluss 2000. Aufsiedlung seit 2001.
2003 ff Weiterbearbeitung mit Bebaungsplan zur Ansiedlung eines Schulzentrums, 2006-08 Weiterbearbeitung im nordöstlichen Anschluss: Wohngebiet Brunnhuber Straße, 8 ha.
|
Sondergebietsentwicklungen "Hornbach Bau- und Gartenmarkt" in Sinsheim 2008-09 und Heidelberg 2010-11
Bebauungsplanänderungen zur Ansiedlung großflächigen Einzelhandels einschließlich Flächennutzungsplanänderungen und Mitwirkung an den raumordnerischen Verfahren. Je Standort ca. 5.0 ha Fläche, in Sinsheim zuzüglich Rückführung des Sondergebietes am bestehenden Altstandort zu Industriegebiet.
|
Weil der Stadt "Gewerbegebiet Hochstraße"
Bebauungsplan-Gesamtänderung eines Industrie - und Gewerbegebietes mit hohem Anteil an klein - und großflächigem Einzelhandel. Teilumwandlung zu Sondergebiet für neuen Bau- und Gartenmarkt. Bewältigung der Agglomerationsproblematik in den bestehenden Einzelhandels-Bereichen. Neuordnung der Verkehrserschließung. 38 ha Fläche, 2010 bis 2012
|