Vorhaben- und Erschließungspläne |



|
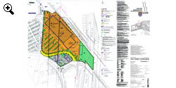
Dresden "Vorhabenbezogener Bebauungsplan Prohlis Nr. 6"
Bebauungsplan gem. § 12 BauGB zur Ansiedlung eines Bau- und Gartenmarktes der Hornbach AG zur Konversion einer Industriebrache mit Feuchtgebietsbiotop und artenschutzrechtlichen Sondermaßnahmen. Ausweisung eines Sondergebiets - großflächiger Einzelhandel zur Versorgung der südlichen Stadtteile der Landeshauptstadt an der Haupterschließungsachse Dresden-Süd. 1997 - 2003
|
| |
Villingen-Schwenningen "Zentralbereich"
Vorhaben- und Erschließungsplan zur Ansiedlung eines Einkaufszentraums mit 26.000 m² Verkaufsfläche als Kern des neuen Zentralbereichs des Oberzentrums Villingen-Schwenningen. Planungsbeginn 1996 - Eröffnung der ersten Einzelhandelsflächen 1999.
|
| |
Gera "Vorhaben- und Erschließungsplan V+E/21/9 Möbelhaus Rieger"
VE-Plan zur Ansiedlung eine Einrichtungshauses und Logistikzentrums von 40.000 m² am nördlichen Stadteingang Geras zwischen A4 und Schloss Tinz. Planungsbeginn 1996, Satzungsbeschluss 1998, Eröffnung Möbelhaus 1999.
|
| |
Schwetzingen "Zündholz I + II"
Zwei Vorhaben- und Erschließungspläne zur Konversion der ehemaligen Zündholzfabriken auf der Markungsgrenze von Schwetzingen und Mannheim. Sondergebietsausweisungen und raumordnerisches Verfahren zur Ansiedlung eines Groß-Möbelhauses und eines Bau- und Gartenmarktes sowie weiterer Verkaufseinrichtungen. 11 ha, 1994-95 und 2000-2002
|